︎
studiokarya
Projects
Practice
People
Publication
s
Contact
studiokarya
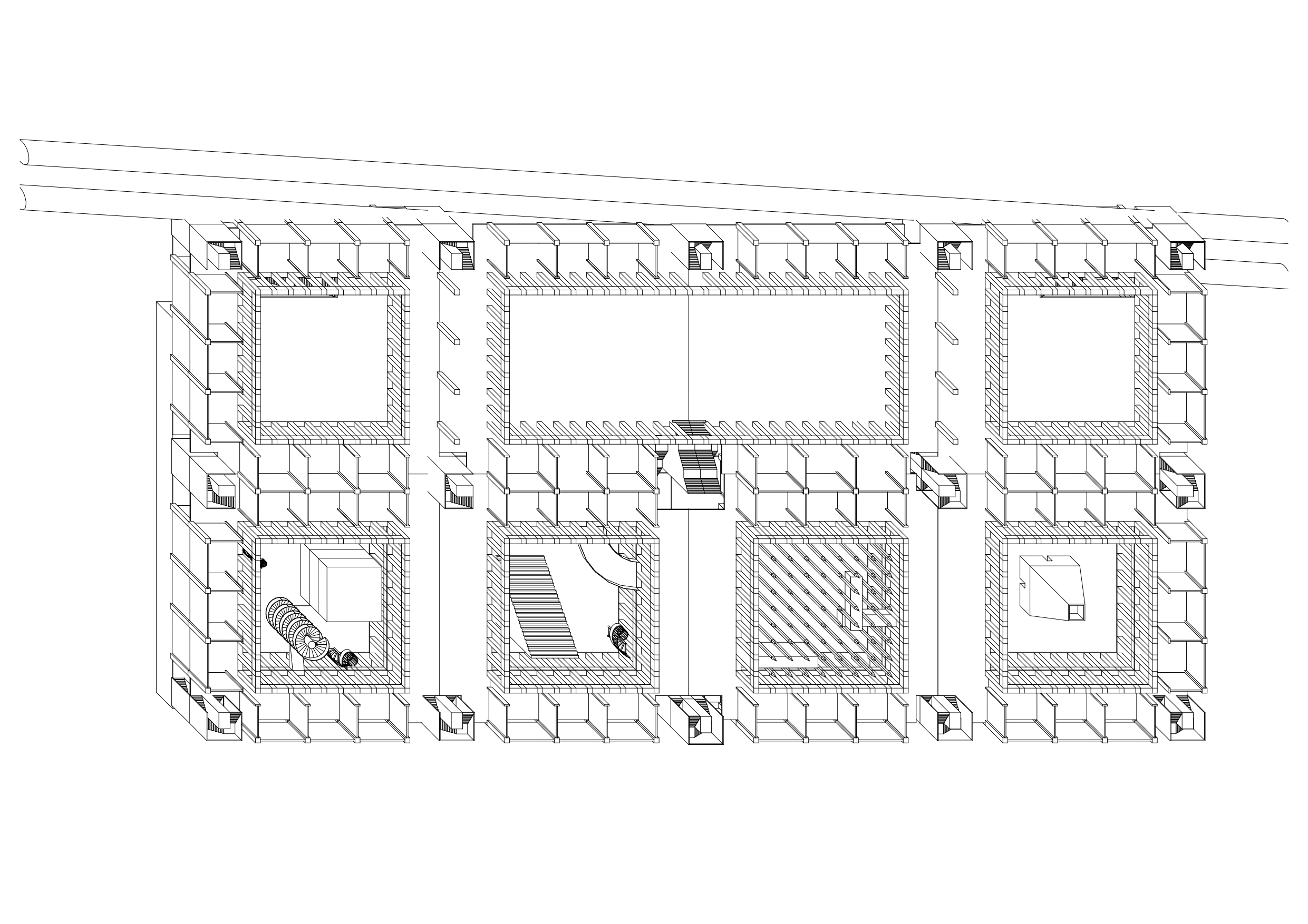
Museum - Singapore Founders’ Memorial Competition
2019
In collaboration with NEW OFFICE
THE PEOPLE’S PLINTH
Singapore
︎︎︎back
next︎︎︎
studiokarya 2026